EQUIPAMIENTOS CAPPONT
El nuevo pabellón de la Fira tendrá un recinto para congresos y jornadas
En el espacio ubicado entre este y el número cuatro, tendrá 791 metros cuadrados y 3 salas || La entidad cerró el pasado ejercicio con un superávit de 344.000 euros

Imagen virtual del nuevo pabellón de la Fira, el quinto, que estará situado junto al número 4 y entre ellos habrá un recinto con tres salas.
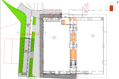
El nuevo pabellón de Fira de Lleida, que se hará al lado del número 4, tendrá un recinto anexo de 791 metros cuadrados ubicado entre ambos pabellones. Así lo aseguraron fuentes del patronato de Fira de Lleida, que ayer se reunió para aprobar las cuentas del año pasado y se vio imágenes virtuales y planos de cómo será este nuevo pabellón, el quinto de la Fira, que estará entre las calles Gandesa y Camí de Picos. En cuanto a este espacio, el director de la Fira, Oriol Oró, detalló que “todavía no se ha definido su capacidad, pero sí tendrá varias salas y servirá para acoger jornadas técnicas, presentaciones o demás actos relacionados con los eventos que organicemos, como por ejemplo la feria de Sant Miquel o el salón Municipàlia”.
Según los planos de este espacio, a los cuales ha tenido acceso este diario, tendrá un total de cuatro vestíbulos y una sala polivalente, además de tres salas de congresos de 208,95; 97,10 y 127,76 metros cuadrados, respectivamente. Paralelamente, habrá un acceso al bar que hay entre los pabellones 3 y 4. En cuanto al nuevo pabellón, tendrá un total de 3.668,27 metros cuadrados de superficie, de los cuales la gran mayoría será de zona de exposición, pero también se prevé una sala reservada para las autoridades y un pequeño almacén.
Contará con módulos de oficinas y sala de reuniones y de juntas en la parte norte del pabellón.Fira de Lleida lleva más de una década reclamando este pabellón para ganar superficie de exposición y ampliar sus instalaciones. Por ello, el pasado 22 de enero la Generalitat, Diputación, Paeria y Cámara de Comercio de Lleida, que conforman su patronato, firmaron un convenio en el que se comprometían a construirlo. Estiman que costará 3,5 millones de euros y la previsión es que esté listo el próximo año.Paralelamente, el patronato de la Fira aprobó ayer las cuentas anuales del 2021, que se cerraron con un superávit de 344.000 euros y una facturación de 1,7 millones, siendo el mejor resultado económico del ente en los últimos años, favorecido al coincidir las ferias de Sant Miquel y Municipàlia.
Se calcula que el impacto en el territorio de las ferias y salones del año pasado fue de 15 millones de euros. El alcalde, Miquel Pueyo, dijo que este resultado positivo “permitirá compensar en parte las pérdidas de 2020, cuando la actividad ferial estaba prohibida” por la pandemia de Covid. La Fira cerró ese ejercicio con 450.000 euros de pérdidas y tuvo que pedir un crédito ICO.

Imagen virtual del nuevo pabellón de la Fira, el quinto, que estará situado junto al número 4 y entre ellos habrá un recinto con tres salas.